Distribuitor - colector pentru incalzire in pardoseala, din otel inoxidabil, cu debitmetre, REHAU HKV-D AG cu 10 circuite, cu racordul la conductele de alimentare cu filet exterior DN 1″ si etansare.
Descriere
Distribuitor cu bară de tur și de retur din oţel inox cu inserţie termostat integrată pe retur (echipabil ulterior cu servomotoare REHAU) și debitmetru integrat pentru reglarea vizuală de precizie a cantităţii de apă pe tur.
Ventile de aerisire ½” cu autoetanșare, nichelate.
Robinete de golire ½” cu autoetanșare.
Suport de perete cu inserţie fonoizolantă, îndoit spre dreapta cu 25 mm.
Circuitul primar
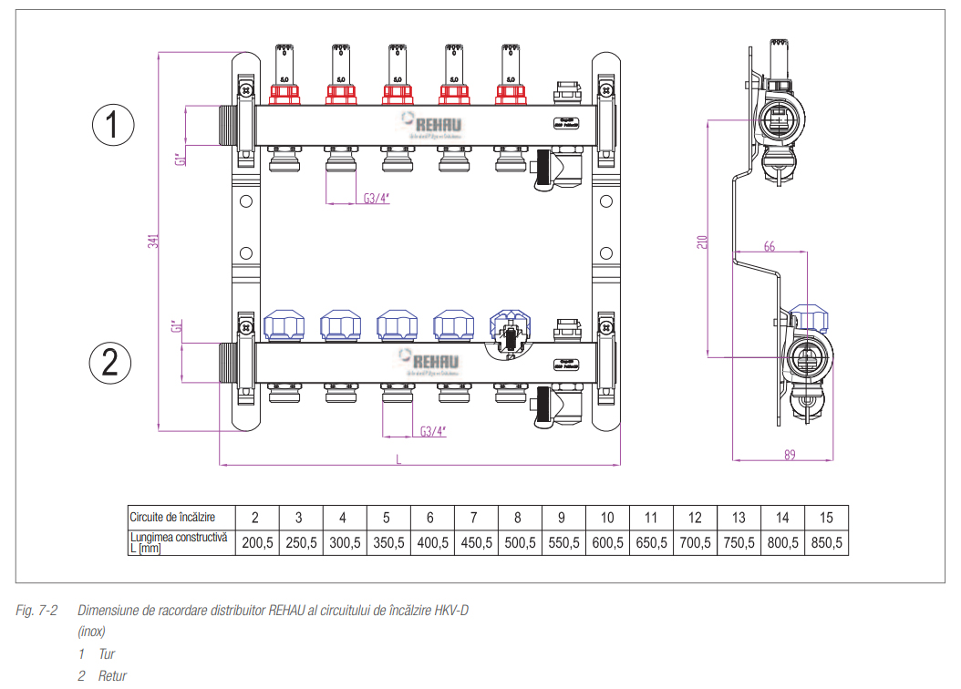
- la un capăt 1“ AG etanșare plată
- la un capăt dop special 1“
Circuitul secundar
- Eurokonus 3/4“ conform DIN EN 16313. Adecvat pentru îmbinările REHAU cu inel de strângere 10,1 x 1,1, 14 x 1,5, 16 x 1,5, 16,2 x 2,6, 16 x 2,2, 17 x 2,0 și 20 x 2,0. Cuplul de strângere maxim admis al îmbinărilor cu inel de strângere este 40 Nm
Caracteristici distribuitor
- colector pentru incalzire in pardoseala HKV-D AG cu 10 circuite:
- numar circuite: 10
- lungime constructiva distribuitor: 600.5 mm
- adancime distribuitor (cu console): 89 mm
- distanta intre racorduri: 50 mm
- dimensiune racord: eurocon 3/4'
- doua tevi din otel inoxidabil tur-retur 1' cu racordurile de iesire de 3/4'
- racordul la conductele de alimentare este cu filet exterior 1″ si etansare plata
- ventile pe retur pentru reglarea debitului, cu racord M30 x1,5
- consolele de fixare ale distribuitorului in dulap sunt drepte, ceea ce duce la micsorarea dulapurilor necesare
- consolele de fixare sunt izolate fonic
- ventil de aerisire
- robinet de golire
- debitmetre cu afisaj debit volumic 0 - 5 l/min
- material : otel inoxidabil
- fitingurile cu inel de strangere (17 x 2 - G 3/4 - 12506071002) si robinetii 1”(set robinet cu bila orizontal G1' - 12081221001) se comanda separat.
Distribuitoarele circuitului de încălzire HKV-D (inox) sunt utilizate pentru distribuţia și reglarea debitului în sistemele de încălzire cu temperatură redusă și de răcire a suprafeţei.
Distribuitoarele circuitului de încălzire HKV-D (inox) funcţionează cu agent termic conform VDI 2035, ÖNORM EN 12828 precum și ÖNORM H 5195-2. La instalaţiile cu particule de coroziune sau impurităţi în apa de încălzire, pentru protecţia echipamentelor de măsură și reglare a distribuitorului se montează colectoare de impurităţi sau filtre cu ochiuri de maximum 0,8 mm în instalaţia de încălzire. Presiunea maximă admisă în regim permanent este de 6 bar la 70 °C. Presiunea de verificare maximă admisă este de 8 bar la 20 °C.
Date tehnice:
- Material - Inox
- Distribuitor/colector format din profil de oţel inox NW 1“
- Circuite de încălzire Pentru 2 până la 15 circuite de încălzire (grupe)
- HKV-D
- 1 debitmetru per circuit de încălzire, pe tur.
- 1 termostat per circuit de încălzire, pe retur.
- Racord ventil M30 x 1,5 mm
- Distanţă nipluri de racordare 50 mm
- Racord pentru Eurokonus G ¾“ A pentru îmbinări REHAU cu inel de strângere conform DIN EN 16313
- Suport/consolă cu inserţie fonoizolantă
Montaj
În panoul de distribuţie REHAU:
- Fixaţi consolele distribuitorului circuitului de încălzire pe șinele culisante cu profil C.
- Fixarea distribuitorului poate fi decalată orizontal și vertical.
Pe perete:
- Fixaţi distribuitorul circuitului de încălzire în alezajele din consola distribuitorului.
Dimensiune de racordare distribuitor REHAU al circuitului de încălzire HKV-D (inox)


Dezaerare
Gulerul exterior prevăzut pentru dezaeare permite dezaerarea 100 % a distribuitorului. Dacă acest guler ar fi fost orientat spre interior, dezaerarea zonei superioare a distribuitorului (cca. 5 mm) nu ar fi fost posibilă, ceea ce ar fi avut ca și consecinţă o reducere a volumului de cca. 10 %.
Debitmetru 0,5-5 l/min.
Debitmetrul de pe bara de distribuţie pe tur este livrat cu un sigiliu montat. Prin rotirea axului negru se modifică secţiunea de deschidere a ventilului și prin urmare se reglează debitul dorit. Cantitatea de apă care circulă prin ventil depinde direct de gradul de deschidere al ventilului.
Cantitatea de apă circulată poate fi monitorizată pe vizor. Pentru reglarea instalaţiei, toate ventilele manuale și de termostat din întreg circuitul trebuie deschise complet. Prin rotirea axului negru se reglează cantitatea de apă calculată pentru circuitul de încălzire în l/min. După reglarea întregii instalaţii, primele setări trebuie controlate din nou și eventual reglate. După reglarea definitivă, debitmetrul trebuie protejat împotriva dereglării nedorite sau accidentale. Pentru aceasta, sigiliul trebuie presat până la opritor pe debitmetru. Prin rotirea completă, debitul este închis. În plus, debitmetrul este echipat cu un Memory-Ring pentru fixarea debitului reglat, pentru a putea reveni la debitul iniţial după modificarea valorilor de reglare.

- Reglare precisă și rapidă fără diagrame, tabele sau aparate de măsură
- Debitul este afișat direct în l/min
- Reglarea poate fi blocată și sigilată împotriva dereglării
- Ventil de reglare blocabil
- Poziţie de montaj la alegere
Set termometre (0-80 °C)
Termometrul opţional cu contact în reazem prezintă un interval de măsurare de 0-80 °C și este prevăzut cu o șa având o formă perfect adaptată la distribuitor.
Pentru extensia cu o ieșire pentru distribuitor a distribuitorului REHAU pentru circuitul de încălzire HKV-D din oţel inox se utilizează setul de extensie. Setul constă dintr-o extensie pe tur și pe retur, care poate fi înfiletată în distribuitorul REHAU pentru circuitul de încălzire HKV-D din oţel inox. Pentru aceasta, pe turul și returul barei de distribuţie trebuie îndepărtat dopul de 1“ existent din fabrică și în locul acestuia trebuie înfiletat setul de extensie. Dopul 1“ se înfiletează în extensie după montaj.