Cazanul VIADRUS U22 Economy îndeplinește cerințele pentru încălzirea caselor familiale, a magazinelor ș.a.m.d.
Diametru 2"
Material Schimbator De Caldura fonta
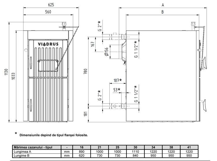
Inaltime (Mm) 1130
Lungime (Mm) 625
Adancime (Mm) 1110
Presiune De Lucru Max.(Bar) 4
Tip Combustibil lemn
Finisaj carcasa tabla din otel, vopsita, culoare negru
Pozitionare pardoseala
Material fonta
Varianta Constructiva gazeificare
Temperatura Max. De Lucru ( °C) 90
Masa (Kg) 312
Adancime Camera De Ardere (Mm) 529
Continut De Apa (L) 52
Gama Combustibil Solid
Gazeificare pe lemn
Gama Putere 25
Cazanul este construit pentru schimb de căldură, cu circuit natural sau forțat a apei de încălzire și o presiune de lucru de până la 400 kPa (4 bar). Înaintea expedierii este încercat la etanșeitate la o presiune de 800 kPa (8 bar). Atunci când utilizați un cazan într-un sistem de gravitație cu circulație naturală a apei de încălzire, este necesar să se țină seama de principiile fizice de bază ale funcționării sale și întregul sistem trebuie proiectat pentru acest mod de funcționare.
AVANTAJELA CAZANULUI:
•durata lungă de viaţă a schimbătorului de căldură din fontă, producţie proprie Viadrus;
•garanţie de 10 ani pe corpul cazanului din fontă;
•grătar fix răcit cu apă;
•funcţionare ecologică –îndeplinește clasa de emisie 5 potrivit ČSN EN 303-5, condițiile „Ecodesign“ și condițiile severe ale standardului german privind emisiile BImSchV Stufe 2;
•pentru funcţionare nu este necesară energie electrică - posibilitate de funcționare independentă de energie electrică (fără evacuarea forțată a gazelor de ardere și fără pompă de circulație, cu excepția sistemelor cu rezervor de acumulare);
•solicitări scăzute de tiraj de coş şi încălzire rapidă a căilor de gaze de ardere;
•randamentul maxim ridicat până la 91%;
•consumul redus de combustibil (cu până la 30%) în comparaţie cu cazane cu ardere clasica;
•serie completă de puteri termice de 16-21-25-30-34-38-41 kW;
•posibilitate de echipare cu arzătorul pentru peleţi –funcţionare duală;
•soluţie originală brevetată a camerei de combustie „ViaBurn ™”;
•montare, deservire şi întreţinere simplă - flanșe cu filet pentru o montare simplă;
•structura verificată în timp;
•tehnologie de producție sofisticată, pe linii de producţie automatizate, cu o calitate a procesului de producție constantă și verificată (ISO 9001, ISO 14 001).
Construcţia cazanului din fontă Viadrus U22 Economy este brevetată.
Soluţia tehnică nouă de reglare a sistemului de combustie ViaBurn TM, asigură circulaţia aerului de combustie preîncălzit în baza tirajului format de coş şi prin urmare permite o ardere mai curată şi economică.
Datorită sistemului brevetat de circulaţie a aerului de ardere, cazanele U22 Economy îndeplinesc cele mai noi regulamente de emisie noxe a UE.

