Open Modal
X
[MAXIMUM_COMPARE_PRODUCTS]
/userfiles/b00b62a3-991c-461a-9f8e-b94857852ea5/image/produs-fp_v2.jpg
Cazan otel 50Kw ECOWOOD STANDARD 50 THERMOSTAHL
Detalii produs
Cazan otel 50Kw ECOWOOD STANDARD 50 THERMOSTAHL
Stoc 0 ! La comanda - Pretul poate suferi modificari
Livrare standard prin curier
Produse certificate la cel mai bun pret
Cazan otel 50Kw ECOWOOD STANDARD 50 THERMOSTAHL

ECOWOOD STANDARD - Cazan cu funcţionare pe combustibil solid cu puteri intre 25 - 100 kW
Cazanul ECOWOOD este proiectat pentru funcționarea cu orice tip de combustibil solid: lemn, resturi agricole, cărbune, brichete.
Versiunea ECOWOOD STANDARD este echipata cu termometru și regulator de combustie cu lanț.
Cazanul este prevazut cu o flanșă care permite montarea ulterioară a unui arzător pe pellet.
Caracteristici principale:
- Camera de ardere mare, oferă volum mare pentru încarcarea lemnelor
- Trei drumuri de fum pentru eficiență ridicată la dimensiuni reduse
- Construcție robustă
- Schimbător de căldură cu țevi
- Adaptare facilă de arzător pellet
- Funcționare economică
- Reglare ardere cu termoregulator (termostat cu lanț)
- Serpentină de protecție demontabilă (opțional)
Construcție cazan
1. Panou de comandă digital
2. Ușă de curațare schimbător
3. Ușă pentru alimentare și evacuare cenușă
4. Flanșă pentru montare arzător pe peleți
5. Ventilator modulant
6. Cenușar
7. Grătar pentru lemne
8. Retur cazan
9. Schimbător de căldură cu ţevi
10. Serpentină de protecție (opțional)
11. Coș de fum
12. Tur cazan
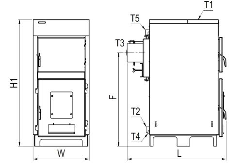
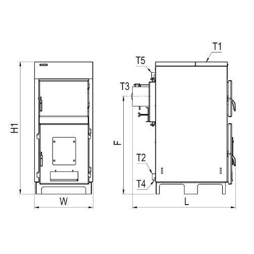
Specificatii tehnice: 
T1 - Tur
T2 - Retur
T3 - Coș de fum
T4 - Racord golire
T5 - Racord conexiune serpentină de protecție

Ecomas face eforturi permanente pentru corectitudinea informatiilor din site. Fotografiile au caracter informativ si pot contine accesorii care nu sunt incluse in pachetul standard. Producatorul poate modifica fara preaviz unele specificatii ale produsului. Promotiile sunt valabile in limita stocului disponibil.
| Putere (KW) |
50 Kw
|
| Latime |
660
|
| Inaltime |
1310 mm
|
| Adancime |
1135
|
înregistrează-te
Înscrieți-vă la newsletter-ul nostru.